树莓控股官网
供应商注册 供应商注册 园区入驻咨询 园区入驻咨询 投诉建议 投诉建议 搜索
PARK INTRODUCTION

园区介绍

园区运营案例

翠屏数字经济产业园

产业园位于宜宾市翠屏区盛达街119号,作为宣宾市翠屏区推动产业数字化转型的核心载体,依托川南枢纽区位优势,聚焦数字经济前沿领域,致力于打造区域数字经济产业集群标杆。园区以”数字赋能、创新驱动”为发展主线,重点培育大数据开发、云计算、人工智能、物联网、软件与信息服务等战略性新兴产业,深化数字技术与实体经济融合,构建现代化产业体系。足川南枢纽区位,以"打造川南数字经济创新高地”为目标,构建集技术研发、场景应用、产业协同、生态服务于一体的现代化数字经济产业载体。形成“头部引领、协同发展”的产业集群。依托企业全周期服务体系,提供基础办公、政策扶持、人才对接等一站式服务,打造硬件互联、数据互通、产业共融”生态,赋能企业高效发展,助力宜宾建设全国同类城市领先的数字经济标杆。
翠屏数字经济产业园
LOCATION AND TRANSPORTATION

区位交通

翠屏数字经济产业园商圈位置图
翠屏区作为成渝双城经济圈的重要连接点与商业枢纽,园区地处宜宾主城区,依托立体交通高效链接内外:可快速接入宜宾城市环线及蓉遵、银昆等高速,紧密衔接川南及成渝核心区。距宜宾西站((高铁枢纽)约15分钟车程,快速直达成都、重庆、贵阳;距宜宾五粮液机场约30分钟车程,航班覆盖国内主要经济圈,38分钟飞抵成都,高效衔接国内国际航程。园区毗邻万达广场、莱茵春天等商业综合体,生活配套完善。周边环绕邦泰国际社区、金帝庄园等多个成熟住区,便于员工安居,实现工作生活平衡。紧邻翠屏山公园、人民公园及金沙江、岷江江岸绿化带,提供宜人绿色空间。此外,周边汇聚宜宾鲁能皇冠假日酒店、宜宾华邑酒店、宜宾凯尔顿豪庭酒店及希尔顿欢朋酒店等知名品牌,满足多元商务接待需求。周边配备大米先生、乡村基等连锁餐饮及各类特色中餐、咖啡馆,便捷解决日常用餐与商务简餐。
LOCATION AND TRANSPORTATION

设计理念

立足川南枢纽区位,以“打造川南数字经济创新高地”为目标,构建集技术研发、场景应用、产业协同、生态服务于一体的现代化数字经济产业载体。聚焦人工智能、大数据、智能制造、数字文化等前沿领域,培育“技术攻关+场景落地”双轮驱动模式,吸引算法研发、工业互联网、数据服务、VR/AR内容创作等企业集聚,形成“头部引领、协同发展”的产业集群。依托企业全周期服务体系,提供基础办公、政策扶持、人才对接等一站式服务,打造“硬件互联、数据互通、产业共融”生态,赋能企业高效发展,助力宜宾建设全国同类城市领先的数字经济标杆,为入驻企业擘画数字未来新图景。
LOCATION AND TRANSPORTATION

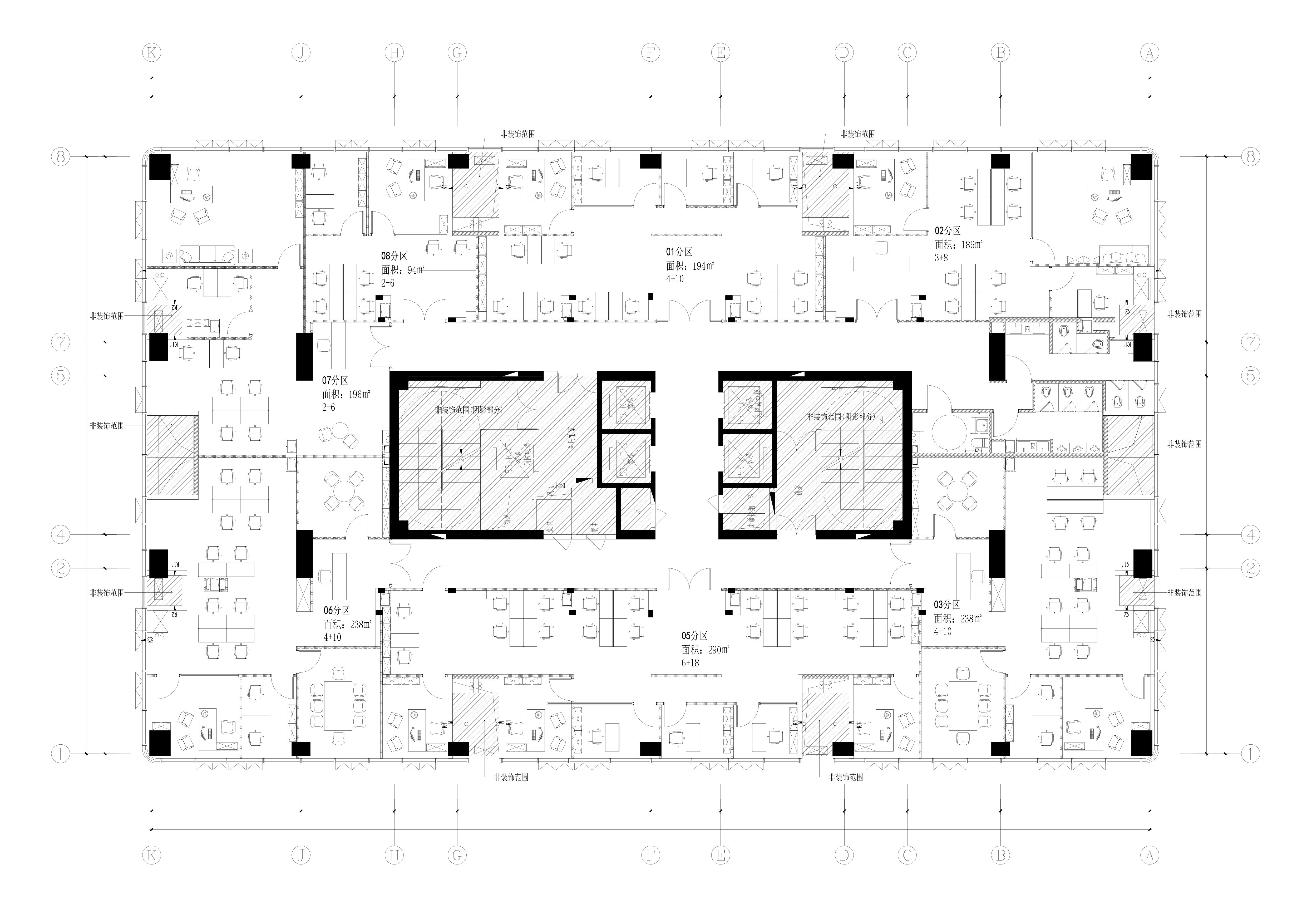
户型与价格

4楼-9M楼、15-15M楼:单价40元/m²;7楼、16楼、17楼:单价45元/m²(均不含4元物业费)
LOCATION AND TRANSPORTATION

联系方式

联系人

万经理

联系电话

15528073591

邮箱地址

w@smcyy.com

免费预约参观
欢迎咨询 电话:15528073591
项目位置 地址:四川省宜宾市翠屏区盛达街119号